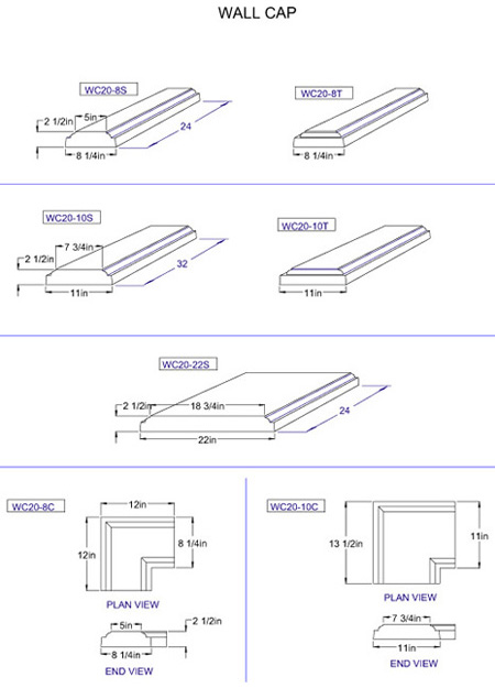
Wall Caps

Back to Top